Щит ЩУАО 16А на 1ввод IP31 500х400х220
Щит ЩУАО 16А был произведен нашей компанией в августе 2025 года.
Стоимость щита - 98 тыс.руб. с НДС.
Цена может меняться в зависимости от комплектации.
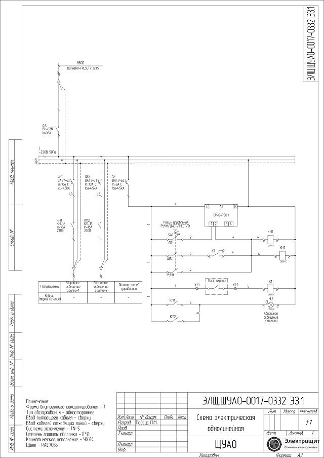
1 ЩУАО предназначен для ввода, распределения электроэнергии, управления аварийным освещением, а также защиты линий при перегрузках и коротких замыканиях, в сетях номинальное напряжение которых не превышает 220В переменного тока частотой не более 50 Гц.
2. Изготовлен в соответствии с требованиями технических условий ТУ 27.14.31.001-0306202107-2021, сертификата соответствия №ЕАЭС RU C-RU.ЯД01.В.00161/22 серия RU №0424781
3. Имеет климатическое исполнение УХЛ категории 4 по ГОСТ 15150-69 (эксплуатация в крытых помещениях с отоплением и с искусственной вентиляцией (регулирование температурных условий, нет низких температур, низкая концентрация пыли))
4. Срок службы ЩУАО– не менее 25 лет.
Стоимость щита - 98 тыс.руб. с НДС.
Цена может меняться в зависимости от комплектации.
1 ЩУАО предназначен для ввода, распределения электроэнергии, управления аварийным освещением, а также защиты линий при перегрузках и коротких замыканиях, в сетях номинальное напряжение которых не превышает 220В переменного тока частотой не более 50 Гц.
2. Изготовлен в соответствии с требованиями технических условий ТУ 27.14.31.001-0306202107-2021, сертификата соответствия №ЕАЭС RU C-RU.ЯД01.В.00161/22 серия RU №0424781
3. Имеет климатическое исполнение УХЛ категории 4 по ГОСТ 15150-69 (эксплуатация в крытых помещениях с отоплением и с искусственной вентиляцией (регулирование температурных условий, нет низких температур, низкая концентрация пыли))
4. Срок службы ЩУАО– не менее 25 лет.
Комплектация ЩУАО 16А
| № | Наименование | Количество |
| 1 | ЩМП ЕКФ 500 400 220 IP31 (ЩРНМ-2) PROxima | 1 |
| 2 | ВА 4763 1п 10А C 4,5кА EKF PROxima | 2 |
| 3 | ВА 4763 1п 6А C 4,5кА EKF PROxima | 1 |
| 4 | ВН 63N 1п 16А EKF PROxima | 1 |
| 5 | КМ 16А 230В 2НО (1мод) EKF контактор | 2 |
| 6 | Колодка клеммная ЗНИ 4 серый JXB-4 ЕКФ | 6 |
| 7 | Контроллер Бриз-РВ | 1 |
| 8 | ПК-1-102 Переключатель кулачковый 10А 2P 0-1-2-3 EKF PROxima | 1 |
| 9 | Изолятор угловой желтый TDM | 1 |
| 10 | Изолятор угловой синий TDM | 1 |
| 11 | КВМ 10 Мультифланец (для ЩРН) TDM IP54 | 1 |
| 12 | Лампа зеленая 230В АС IP40 ND16-22DS/4 CHINT | 1 |
| 13 | Реле 2СО 230В АС Shenler RFT | 1 |
| 14 | Шина нулевая 10/1 6х9мм (10групп/крепеж по центру) TDM | 2 |
Характеристики ЩУАО 16А
| 1 | Напряжение и частота питающей сети | 220 В, 50Гц (1ф+PE+N) |
| 2 | Кол-во вводов | 1 ввод |
| 3 | Номинальный ток (А) | 16 |
| 4 | Номинальное напряжение (В) | 220 |
| 5 | Наличие коммерческого учета электроэнергии | нет |
| 6 | Наличие измерительных приборов | нет |
| 7 | Тип АВР и модификация управления | нет |
| 8 | Рабочий диапазон температуры окружающей среды, град. С | От +1 до +35 |
| 9 | Габаритные размеры, мм | 500х400х220 |
| (высота / ширина / глубина) | ||
| 10 | Форма внутреннего секционирования | 1 |
| 11 | Степень защиты | IP31 |
| 12 | Исполнение | Навесное |
| 13 | Сопротивление изоляции не менее, МОм | 10 |

